DIRECT CONTACT

Gerard Brandtstraat 24 A
Amsterdam

Te koop: Prachtige, aan Vondelpark gelegen, gerenoveerde woning aan de Gerard Brandtstraat 24, Amsterdam

Karakteristieke, drie laags, beneden woning gelegen op eigen grond aan de Gerard Brandtstraat 24. Gelegen naast het Vondelpark en tegenover Villa Betty in Oud West. Veel privacy, veel groen en een monumentale uitstraling in een rustig straatje dat uitkomt in een rustig deel van het Vondelpark.

De woning maakt deel uit van een pand waar op de bovenste twee verdiepingen een bovengelegen tweede appartement is gesitueerd. Dit appartement heeft een eigen ingang. Beiden appartementen samen (thans nog eigendom van dezelfde eigenaar) vormen een VVE.

Het pand uit 1879 onderscheidt zich door zijn unieke architectuur en bijzondere uitstraling. Er is in 2014 van binnen en van buiten met zorg gerestaureerd om de grandeur van de 19de-eeuwse bouwstijl te behouden, terwijl het comfort van deze tijd wordt geboden.

Momenteel is de benedenwoning te koop. Dit appartement heeft 188 m2 vloeroppervlak en hoge plafonds (ruim 3 meter) op de bel-etage en de eerste verdieping. De slaapkamers en beide badkamers zijn in het (koele) souterrain. Aan de achterzijde is de onderhoudsarme tuin van ca. 106 m2 met een vrijstaande berging van ca. 5m2.

De woning is in 2014 volledig gerenoveerd, waarbij originele elementen zoals de en-suite tussen de eetkamer en keuken, de servieskast in de eetkamer, de trapspijlen en leuningen, en het balkon aan de voorzijde bewaard zijn gebleven. De ornamenten aan de hoge plafonds zijn in oude stijl hersteld en het gebruik van monumentenglas in de ramen zorgt voor behoud van de historische uitstraling. De kozijnen en deuren en ramen zijn in de oorspronkelijke stijl teruggebracht. Het gehele appartement is voorzien van houten vloeren. De staat van onderhoud is uitstekend.

De woning heeft moderne voorzieningen, zoals een glasvezelaansluiting en een volledig vernieuwd verwarmingssysteem met convectoren, subtiel weggewerkt in de stijl van het huis. Alle technische installaties zijn in 2014 vernieuwd. Veiligheid is verzekerd met een professionele beveiligingsinstallatie. Het brandalarm is tussen de beide appartementen in het pand verbonden.

WOONCOMFORT
De woning is ideaal voor zowel gezinnen als professionals die de perfecte balans zoeken tussen historie en moderne luxe.

Dankzij de grote ramen geniet de woning van veel licht, zowel in de ochtend als in de middag en avond.

De tuin ligt op het zuidwesten en biedt een heerlijke plek om van de zon te genieten. Vanaf het balkon op de bel-etage en ook vanuit de ouderslaapkamer is de tuin toegankelijk. De tuin is aangelegd om veel water op te vangen en beschikt over een charmant vijvertje, wat de groene oase compleet maakt. Een tuinschuur van ca. 5 m2 geeft veel extra bergruimte.

INDELING

Bel-etage
De entree van de woning bevindt zich op de bel-etage. U komt binnen in de hal met toegang tot de keuken en overloop, op de overloop bevindt zich een separaat toilet en de trap naar souterrain en eerste etage. De trappen zijn bij de renovatie vervangen en ‘lui’ gemaakt. Aan de voorzijde ligt de stijlvolle open keuken met kookeiland en moderne inbouwapparatuur, perfect voor kookliefhebbers. Aansluitend bevindt zich de eetkamer, een prachtige, lichte ruimte met openslaande deuren naar het ruime en zonnige balkon aan de achterzijde. Hier geniet u van de middag- en avondzon.

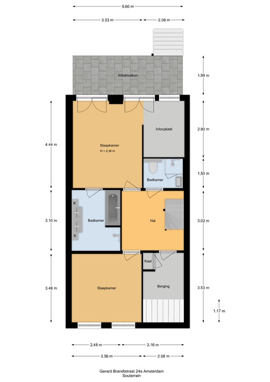
Souterrain
Via een interne trap bereikt u het souterrain, dat verrassend ruim en praktisch is ingedeeld. Aan de voorzijde bevindt zich een ruime slaapkamer. Aan de achterzijde vindt u de tweede royale slaapkamer, voorzien van openslaande deuren naar de achtertuin. Grenzend aan deze slaapkamer bevindt zich een ruime inloopkast en een badkamer voorzien van ligbad, dubbele wastafel en toilet. Tevens is er nog een tweede badkamer aanwezig voorzien van toilet, douche en wastafel. Aan de voorzijde bevindt zich een bergruimte met wasmachine en droger aansluiting. Royale achtertuin van ca. 106m2 op het Zuid-Westen gelegen.

Eerste verdieping
Via de overloop heeft u toegang tot de zeer ruime woonkamer welke is gelegen aan de voorzijde van het pand, de woonkamer heeft een luxe gaskachel en toegang tot een balkonnetje. En-suite deuren bieden toegang naar kantoorruimte, ideaal voor thuiswerken of te gebruiken als extra slaapkamer. Deze kamer is eveneens voorzien van twee inbouwkasten. Op deze verdieping bevindt zich tevens een berging en een separaat toilet.

LOCATIE
Gelegen op 50 meter van het Vondelpark, geniet u van absolute rust en privacy. De tuin is volledig afgeschermd en biedt geen inkijk van buitenaf – een zeldzame luxe in de stad. Vanuit de woning kijkt u uit op de Villa Betty aan de voorzijde en de gebouwen van Reade aan de achterzijde. De bewonderd van de hechte buurt helpen helpen elkaar waar nodig. De straat is perfect gelegen met goede verbindingen naar het openbaar vervoer en winkels. Het monumentale Orgelpark grenst aan de woning. Het museumkwartier, Concertgebouw en het Leidseplein zijn op loopafstand en via het Vondelpark goed bereikbaar. Voor restaurants, bioscoop en boodschappen is de JP Heijestraat, de Helmersbuurt en de Kinkerbuurt en de Hallen op loopafstand.

FUNDERING & ONDERHOUD
De fundering van het pand is in goede staat en werd in 2014 opnieuw goedgekeurd voor de komende 25 jaar. Alle installaties zijn in datzelfde jaar vernieuwd en het pand is sindsdien goed onderhouden. De Vereniging van Eigenaren (VVE) heeft een actief onderhoudsplan, en er is voldoende financiële dekking voor de komende jaren.

BIJZONDERHEDEN
• Gelegen op eigen grond (ca. 188m2)
• Geheel gerenoveerd in 2014 met behoud van historische charme en moderne comfort
• Ligging op 50 meter van het Vondelpark
• Zonnige tuin op het zuidwesten
• Energielabel A
• Ruime, lichte kamers met behoud van authentieke details
• Funderingscode 2 afgegeven in 2014
• 3 woonlagen
• Parkeren in de straat met vergunning

De meetinstructie is gebaseerd op de NEN2580. Deze instructie is bedoeld om een meer eenduidige meetmethode toe te passen voor het geven van een indicatie van de gebruiksoppervlakte. Verschillen in meetresultaten kunnen niet volledig worden uitgesloten, bijvoorbeeld door interpretatieverschillen, afrondingen of beperkingen bij het uitvoeren van de meting.


For sale: Beautiful, renovated 3 double floor family house located on Vondelpark at Gerard Brandtstraat 24, Amsterdam

Characteristic, 3 double ground-floor house located on freehold land at Gerard Brandtstraat 24. Situated next to Vondelpark and opposite Villa Betty in Oud West. Enjoying ample privacy, greenery, and a historic feel, this quiet street leads to a peaceful section of Vondelpark.

This house is part of a building with a second apartment on the double top floor. This apartment has its own entrance. Both apartments (currently still owned by the same owner) form a homeowners' association (VvE).

The building, dating from 1879, is distinguished by its unique architecture and distinctive character. In 2014, the interior and exterior were meticulously restored to preserve the grandeur of the 19th-century architectural style while offering modern comforts.

The ground-floor house is currently for sale. This house has 188 m² of floor space and high ceilings (over 3 meters) on the main floor and first floor. The bedrooms and both bathrooms are located in the (cool) basement. At the rear is the low-maintenance garden of approximately 106 m² with a detached storage shed of approximately 5 m².

The house was fully renovated in 2014, preserving original features such as the en-suite bathroom between the dining room and kitchen, the china cabinet in the dining room, the staircase spindles and banisters, and the front balcony. The ornamentation on the high ceilings has been restored in its original style, and the use of heritage glass in the windows preserves the historic character. The window frames, doors, and windows have been restored to their original style. The entire apartment has wooden floors and is in excellent condition.

The house has modern amenities, such as fiber optic internet and a completely renovated heating system with convectors, subtly integrated into the style of the house. All technical installations were updated in 2014. Safety is assured with a professional security system. The fire alarm is connected between the two apartments in the building.

LIVING COMFORT
This home is ideal for both families and professionals seeking the perfect balance between history and modern luxury.

Thanks to the large windows, the home enjoys abundant natural light, morning, afternoon, and evening.

The southwest-facing garden offers a wonderful spot to soak up the sun. The garden is accessible from the balcony on the first floor and from the master bedroom. The garden is landscaped to capture abundant water and features a charming pond, completing this green oasis. A garden shed of approximately 5 m² provides ample additional storage space.

LAYOUT

First Floor
The entrance to the house is on the first floor. You enter into the hall with access to the kitchen and landing. On the landing, you'll find a separate toilet and the stairs to the basement and first floor. The stairs were removed and made "lazy" during the renovation. At the front of the house is the stylish open-plan kitchen with a cooking island and modern built-in appliances, perfect for those who enjoy cooking. Adjacent is the dining room, a beautiful, bright space with double doors leading to the spacious and sunny balcony at the rear, where you can enjoy the afternoon and evening sun.

Ground floor
An internal staircase leads to the basement, which is surprisingly spacious and practically laid out. At the front is a spacious bedroom. At the rear is a second generous bedroom, with double doors leading to the back garden. Adjacent to this bedroom is a large walk-in closet and a bathroom with a bathtub, double sink, and toilet. There is also a second bathroom with a toilet, shower, and sink. At the front is a storage room with connections for a washing machine and dryer. A generous back garden of approximately 106m² facing the South-West.

First Floor
The landing leads to the very spacious living room, located at the front of the property. The living room features a luxurious gas fireplace and access to a small balcony. En-suite doors provide access to the office space, ideal for working from home or as an extra bedroom. This room also features two built-in wardrobes. This floor also includes a storage room and a separate toilet.

LOCATION
Located 50 meters from Vondelpark, you'll enjoy absolute peace and privacy. The garden is fully enclosed and completely private – a rare luxury in the city. From the house, you have a view of Villa Betty at the front and the Reade buildings at the rear. The residents of this close-knit neighborhood help each other out whenever needed. The street is ideally located with good connections to public transport and shops. The monumental Orgelpark borders the house. The Museum Quarter, Concertgebouw, and Leidseplein are within walking distance, and via the street, you can also reach the city center.
FOUNDATION & MAINTENANCE
The building's foundation is in good condition and was re-approved in 2014 for the next 25 years. All systems were replaced that same year, and the building has been well-maintained since then. The Homeowners' Association (VVE) has an active maintenance plan, and there is sufficient financial coverage for the coming years.

SPECIAL FEATURES
• Situated on freehold land (approx. 188m²)
• Completely renovated in 2014, retaining its historic charm and modern comforts
• Located 50 meters from Vondelpark
• Sunny southwest-facing garden
• Energy label A
• Spacious, bright rooms with preserved authentic details
• Foundation code 2 issued in 2014
• 3 floors
• Street parking with a permit

The measurement instructions are based on the NEN2580 standard. These instructions are intended to apply a more uniform measurement method for indicating the usable floor area. Differences in measurement results cannot be completely ruled out, for example due to differences in interpretation, rounding or limitations in performing the measurement.

Algemeen

  • Type woning Appartement
  • Bouwjaar 1879

Kamers

  • Aantal kamers 5 kamers
  • Badkamer(s) 2 badkamer(s)
  • Slaapkamer(s) 3 slaapkamer(s)

Oppervlakte

  • Woonoppervlakte 188 m2
  • Inhoud 726.1 m3

Omgeving

  • Ligging Aan park
    In woonwijk
    Dichtbij openbaar vervoer

Het formulier is succesvol verzonden

Meer informatie of vragen?

Vraag het Sijmon

Sijmonde Boer 020 - 890 30 99 info@vanhuisuit-makelaars.nl

Oeps, daar ging iets mis

Helaas is het verzenden van het formulier niet gelukt, wij zijn wel telefonisch bereikbaar

Vraag het Sijmon

Sijmonde Boer 020 - 890 30 99 info@vanhuisuit-makelaars.nl