DIRECT CONTACT

Bilderdijkstraat 39 1
Amsterdam

*** Englisch Translation Below ***

NIEUW IN DE VERKOOP:
Op een bruisende en centrale locatie aan de geliefde Bilderdijkstraat in Amsterdam Oud-West ligt dit lichte en charmante appartement van 68 m², met eeuwigdurend vastgeklikte erfpacht. De woning beschikt over een ruime slaapkamer die grenst aan een groendak met een heerlijk rustig balkon van 6 m² en vormt de ideale uitvalsbasis om volop te genieten van alles wat Amsterdam te bieden heeft.

In de levendige Da Costabuurt is altijd iets te beleven. Hier vind je alles binnen handbereik: van chique restaurants tot (biologische) supermarkten en hippe koffiezaken. Of je nu op zoek bent naar culinaire verwennerij, een ontspannen lunchplek of gewoon een goede cappuccino, het is allemaal slechts een paar stappen van je voordeur.

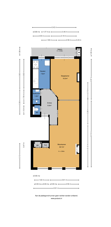
INDELING:
Via het nette, gemeenschappelijke trappenhuis bereik je de entree op de eerste verdieping. De hal biedt ruimte voor jassen en tassen en geeft toegang tot vrijwel alle vertrekken.

De royale woonkamer aan de voorzijde wordt direct gevuld met natuurlijk licht dankzij de grote raampartijen. Het uitzicht op het levendige straatbeeld van Amsterdam is een levend schilderij dat nooit verveelt. De living is ruim genoeg voor een comfortabele zithoek én een gezellige eethoek. Een charmante (sier)haard voegt karakter toe en versterkt de warme, huiselijke sfeer. Slim ingedeelde inbouwkasten bieden extra opbergruimte.

Aan de achterzijde bevindt zich de aparte keuken, voorzien van voldoende kastruimte en diverse (inbouw)apparatuur, waardoor je hier met gemak uitgebreid kunt koken. De ruime slaapkamer grenst aan het balkon en biedt voldoende plek voor een groot tweepersoonsbed en een royale kledingkast.

De badkamer is compleet uitgerust met een inloopdouche, wastafel met meubel en een radiator voor heerlijk warme handdoeken in de ochtend. Het toilet is separaat en via de hal bereikbaar. Tot slot beschikt de woning over een handige berging van circa 5 m² op de vierde verdieping.

OMGEVING:

Welkom in het hart van Oud-West, aan de levendige en charmante Bilderdijkstraat. Hier woon je te midden van alles wat Amsterdam zo bijzonder maakt. Zodra je de voordeur uitstapt, word je omringd door de bruisende energie van de stad: sfeervolle cafés en trendy restaurants zoals Karavaan, Lot 61, Café Binnenvisser, nNea en Little Collins liggen op een steenworp afstand. Voor een culinaire of culturele avond hoef je alleen maar richting de populaire Hallen te lopen – dé hotspot voor food, film en gezelligheid.

Op slechts enkele minuten wandelen vind je het iconische Vondelpark, een groene oase waar je kunt hardlopen, wandelen of simpelweg genieten van de rust midden in de stad. En voor een authentieke Amsterdamse sfeer wandel je zo de Jordaan in, met haar charmante straatjes, boetiekjes en gezellige terrassen.

De bereikbaarheid is perfect: diverse tramlijnen (7, 13 en 19) brengen je in no-time naar iedere uithoek van de stad en met de auto zit je binnen enkele minuten op de ring A10.

Kortom, een locatie waar stadse levendigheid, comfort en gemak moeiteloos samenkomen.


BIJZONDERHEDEN:
- Fundering vernieuwd in 2001
- CV installatie 2022
- Energie label C
- Berging op 4e etage ca, 5m2
- VvE-kosten voor onderhoud €165,95 per maand
- VvE wordt professioneel beheerd door Delair Vastgoedbeheer B.V.
- Rondom dubbelglas
- Notaris keuze koper binnen de ring
- Levering in overleg, kan snel

De meetinstructie is gebaseerd op de NEN2580. Deze instructie is bedoeld om een meer eenduidige meetmethode toe te passen voor het geven van een indicatie van de gebruiksoppervlakte. Verschillen in meetresultaten kunnen niet volledig worden uitgesloten, bijvoorbeeld door interpretatieverschillen, afrondingen of beperkingen bij het uitvoeren van de meting.

*** English Translation ***


NEW ON THE MARKET:
In a vibrant and central location on the sought-after Bilderdijkstraat in Amsterdam Oud-West, you’ll find this bright and charming 68 m² apartment with perpetual fixed ground lease. The property features a spacious bedroom adjacent to a green roof with a wonderfully quiet 6 m² balcony, making it the perfect base to enjoy everything Amsterdam has to offer.

In the lively Da Costabuurt, there’s always something happening. Everything is within easy reach here: from chic restaurants to (organic) supermarkets and trendy coffee spots. Whether you’re looking for fine dining, a relaxed lunch venue, or simply a great cappuccino, it’s all just a few steps from your front door.

LAYOUT:
Through the neat, shared staircase you reach the entrance on the first floor. The hallway offers space for coats and bags and provides access to almost all rooms.
The spacious living room at the front is immediately filled with natural light thanks to the large windows. The view of Amsterdam’s lively street life is like a living painting that never gets old. The living area is large enough for a comfortable sitting area as well as a cozy dining corner. A charming (decorative) fireplace adds character and enhances the warm, homely atmosphere. Smartly designed built-in cupboards offer additional storage space.

At the rear, you’ll find the separate kitchen, equipped with ample cabinet space and various (built-in) appliances, making it easy to prepare elaborate meals. The generous bedroom adjoins the balcony and offers enough space for a large double bed and a spacious wardrobe.

The bathroom is fully equipped with a walk-in shower, washbasin with cabinet, and a radiator for wonderfully warm towels in the morning. The toilet is separate and accessible from the hallway. Finally, the property includes a convenient storage room of approx. 5 m² on the fourth floor.

SURROUNDINGS:
Welcome to the heart of Oud-West, on the lively and charming Bilderdijkstraat. Here you live surrounded by everything that makes Amsterdam so special. As soon as you step outside, you’re immersed in the city’s vibrant energy: cozy cafés and trendy restaurants such as Karavaan, Lot 61, Café Binnenvisser, nNea, and Little Collins are just around the corner. For a culinary or cultural evening, simply head to the popular Hallen – the hotspot for food, film, and socializing.

Within just a few minutes’ walk, you’ll find the iconic Vondelpark, a green oasis where you can jog, stroll, or simply enjoy peace and quiet in the middle of the city. And for an authentic Amsterdam vibe, you can easily wander into the Jordaan, with its charming streets, boutiques, and lively terraces.

Accessibility is excellent: several tram lines (7, 13, and 19) will take you across the city in no time, and by car you can reach the A10 ring road within minutes.
In short, a location where urban vibrancy, comfort, and convenience come together effortlessly.

DETAILS:
- Foundation renewed in 2001
- Central heating system (2022)
- Energy label C
- Storage room on 4th floor approx. 5 m²
- VvE (homeowners’ association) contribution €165.95 per month
- VvE professionally managed by Delair Vastgoedbeheer B.V.
- Double glazing throughout
- Notary chosen by buyer, within the ring road
- Transfer date negotiable, quick completion possible

The measurement instruction is based on NEN2580. This instruction is intended to apply a more uniform measurement method for indicating the usable floor area. Differences in measurement results cannot be entirely excluded, for example due to differences in interpretation, rounding, or limitations when carrying out the measurement.

NEW ON THE MARKET:
In a vibrant and central location on the sought-after Bilderdijkstraat in Amsterdam Oud-West, you’ll find this bright and charming 68 m² apartment with perpetual fixed ground lease. The property features a spacious bedroom adjacent to a green roof with a wonderfully quiet 6 m² balcony, making it the perfect base to enjoy everything Amsterdam has to offer.

In the lively Da Costabuurt, there’s always something happening. Everything is within easy reach here: from chic restaurants to (organic) supermarkets and trendy coffee spots. Whether you’re looking for fine dining, a relaxed lunch venue, or simply a great cappuccino, it’s all just a few steps from your front door.

LAYOUT:
Through the neat, shared staircase you reach the entrance on the first floor. The hallway offers space for coats and bags and provides access to almost all rooms.
The spacious living room at the front is immediately filled with natural light thanks to the large windows. The view of Amsterdam’s lively street life is like a living painting that never gets old. The living area is large enough for a comfortable sitting area as well as a cozy dining corner. A charming (decorative) fireplace adds character and enhances the warm, homely atmosphere. Smartly designed built-in cupboards offer additional storage space.

At the rear, you’ll find the separate kitchen, equipped with ample cabinet space and various (built-in) appliances, making it easy to prepare elaborate meals. The generous bedroom adjoins the balcony and offers enough space for a large double bed and a spacious wardrobe.

The bathroom is fully equipped with a walk-in shower, washbasin with cabinet, and a radiator for wonderfully warm towels in the morning. The toilet is separate and accessible from the hallway. Finally, the property includes a convenient storage room of approx. 5 m² on the fourth floor.

SURROUNDINGS:
Welcome to the heart of Oud-West, on the lively and charming Bilderdijkstraat. Here you live surrounded by everything that makes Amsterdam so special. As soon as you step outside, you’re immersed in the city’s vibrant energy: cozy cafés and trendy restaurants such as Karavaan, Lot 61, Café Binnenvisser, nNea, and Little Collins are just around the corner. For a culinary or cultural evening, simply head to the popular Hallen – the hotspot for food, film, and socializing.

Within just a few minutes’ walk, you’ll find the iconic Vondelpark, a green oasis where you can jog, stroll, or simply enjoy peace and quiet in the middle of the city. And for an authentic Amsterdam vibe, you can easily wander into the Jordaan, with its charming streets, boutiques, and lively terraces.

Accessibility is excellent: several tram lines (7, 13, and 19) will take you across the city in no time, and by car you can reach the A10 ring road within minutes.
In short, a location where urban vibrancy, comfort, and convenience come together effortlessly.

DETAILS:
- Foundation renewed in 2001
- Central heating system (2022)
- Energy label C
- Storage room on 4th floor approx. 5 m²
- VvE (homeowners’ association) contribution €165.95 per month
- VvE professionally managed by Delair Vastgoedbeheer B.V.
- Double glazing throughout
- Notary chosen by buyer, within the ring road
- Transfer date negotiable, quick completion possible

The measurement instruction is based on NEN2580. This instruction is intended to apply a more uniform measurement method for indicating the usable floor area. Differences in measurement results cannot be entirely excluded, for example due to differences in interpretation, rounding, or limitations when carrying out the measurement.

Algemeen

  • Type woning Appartement
  • Bouwjaar 1902

Kamers

  • Aantal kamers 2 kamers
  • Badkamer(s) 1 badkamer(s)
  • Slaapkamer(s) 1 slaapkamer(s)

Oppervlakte

  • Woonoppervlakte 68 m2
  • Inhoud 211 m3

Omgeving

  • Ligging In centrum
    Dichtbij openbaar vervoer
    Dichtbij school

Het formulier is succesvol verzonden

Meer informatie of vragen?

Vraag het Sijmon

Sijmonde Boer 020 - 890 30 99 info@vanhuisuit-makelaars.nl

Oeps, daar ging iets mis

Helaas is het verzenden van het formulier niet gelukt, wij zijn wel telefonisch bereikbaar

Vraag het Sijmon

Sijmonde Boer 020 - 890 30 99 info@vanhuisuit-makelaars.nl